Ярославль, Строящийся жилой дом
Площадь
Жилая
Кухня
Отделка
Класс жилья
Комнат
Номер кв.
Этаж
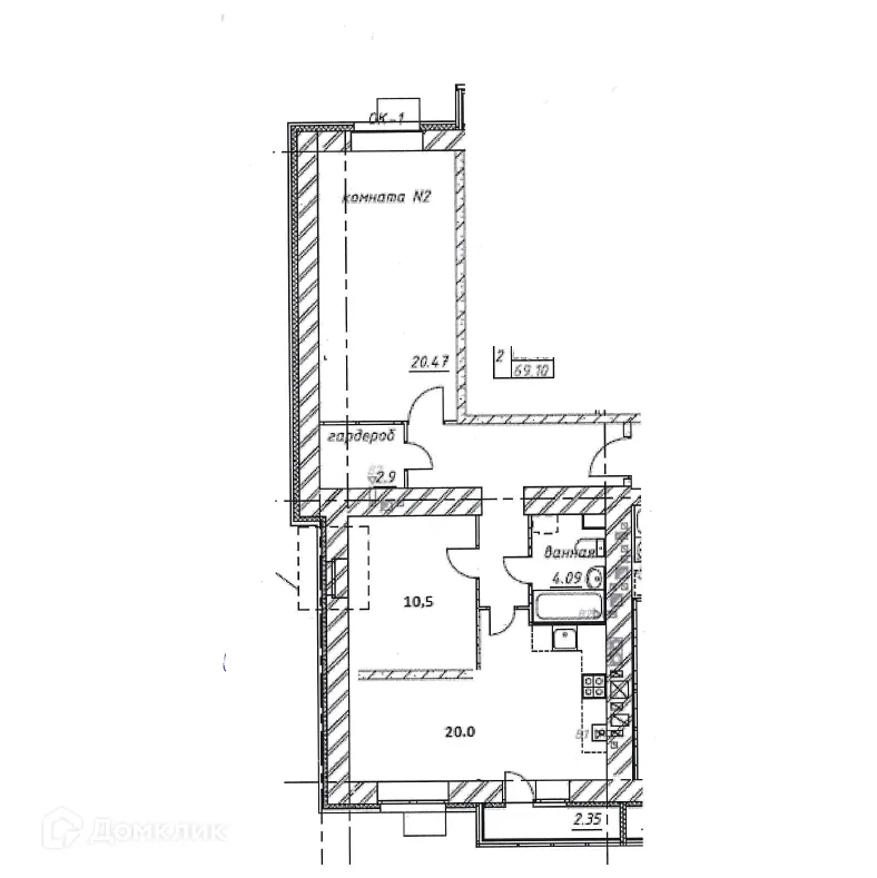
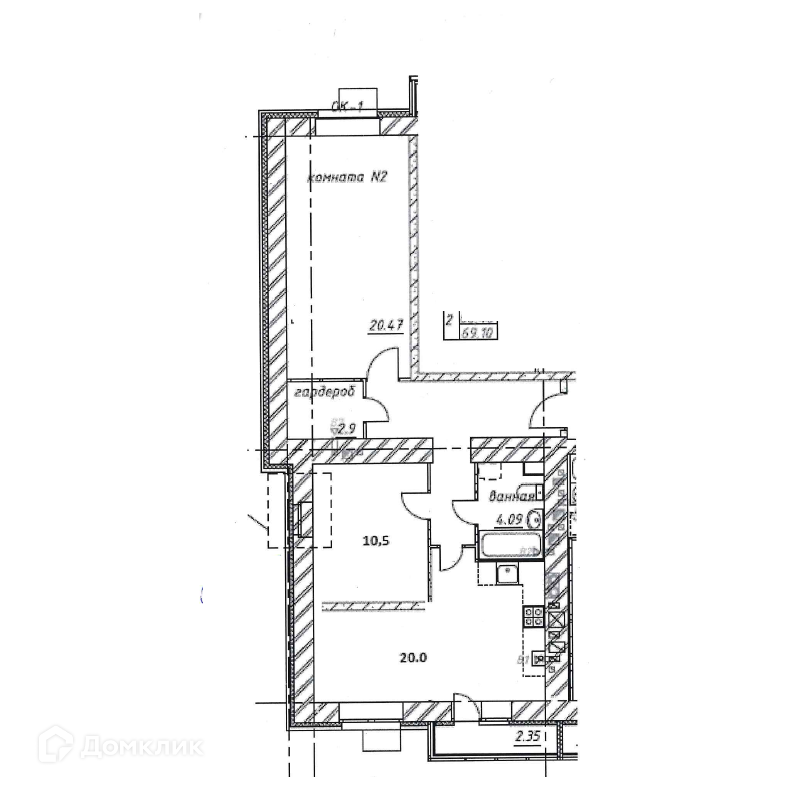
Доступна к покупке 2-комнатная квартира в современном жилом комплексе "ЖК МЯТА" 🏢. Квартира расположена на 7-м этаже 10-этажного дома. Отличный вариант для комфортной жизни.
Для бесплатного бронирования и зафиксировать цену — свяжитесь с нами прямо сейчас! 📞
Представляем вашему вниманию жилой комплекс «Мята», расположенный в самом экологически чистом районе Ярославля — Заволжском. Этот проект станет идеальным выбором для тех, кто хочет приобрести квартиру с готовой отделкой и при этом не переплачивать за квадратные метры.
Срок сдачи: 3 кв. 2026 г.
Срок сдачи: 3 кв. 2026 г.
Площади квартир
Этажность
Класс жилья
Корпусов
Стены