Описание квартиры в "ЖК в городе Ярославль, шоссе Тутаевское, д. 93-а"
Предлагается 1-комнатная квартира в современном жилом комплексе "ЖК в городе Ярославль, шоссе Тутаевское, д. 93-а" 🏢.
Квартира расположена на 6-м этаже 10-этажного дома.
Прекрасный выбор для инвестиций.
Продуманная планировка
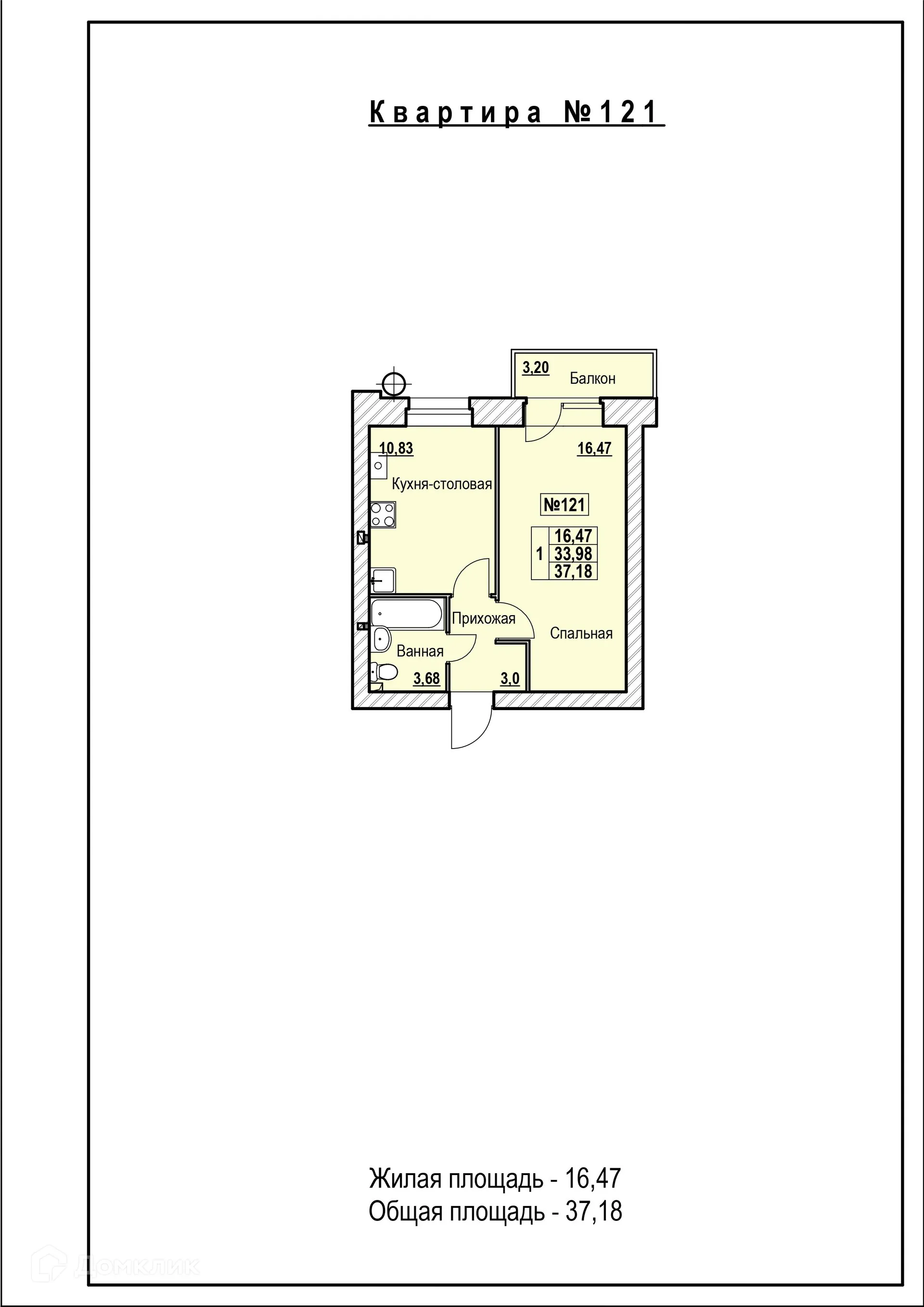
- ✅ Общая площадь: 37.18 м².
- ✅ Светлая жилая площадь: - м².
- ✅ Кухня: - м² — эргономичное пространство.
Особенности квартиры
- 🔧 Вариант отделки: предварительная отделка. Это позволит вам сразу приступить к ремонту.
- 🌞 Увеличенные оконные проемы наполняют помещения естественным светом.
- 🌿 Класс жилья: Комфорт — высокое качество строительства.
Финансы и ипотека
- 💳 Ипотека от 16 049 руб/мес.
- 🏦 Подходит под семейную и IT ипотеку.
- 🤝 Безопасная сделка гарантирует спокойствие.
Для бесплатного бронирования и проверить актуальную стоимость — свяжитесь с нами прямо сейчас! 📞
Характеристики новостройки в ЖК в городе Ярославль, шоссе Тутаевское, д. 93-а
- Номер квартиры: 149
- Вариант отделки: предварительная отделка
- Общая площадь: 37.18 м²
- Жилая площадь: - м²
- Площадь кухни: - м²
- Класс жилья: Комфорт
- Количество комнат: 1-комнатная квартира
- Этаж: 6
- Этажность дома: 10
Полезная информация о ЖК в городе Ярославль, шоссе Тутаевское, д. 93-а