Другие планировки в ЖК МЕГАПОЛИС

Планировка 1 комн. в ЖК МЕГАПОЛИС
37.6 м²

1-комнатная

от 3 421 600 ₽

15 предложений

Смотреть планировку
Планировка 2 комн. в ЖК МЕГАПОЛИС
53.04 м²

2-комнатная

от 4 773 600 ₽

8 предложений

Смотреть планировку
Планировка 3 комн. в ЖК МЕГАПОЛИС
70.45 м²

3-комнатная

от 5 776 900 ₽

3 предложения

Смотреть планировку

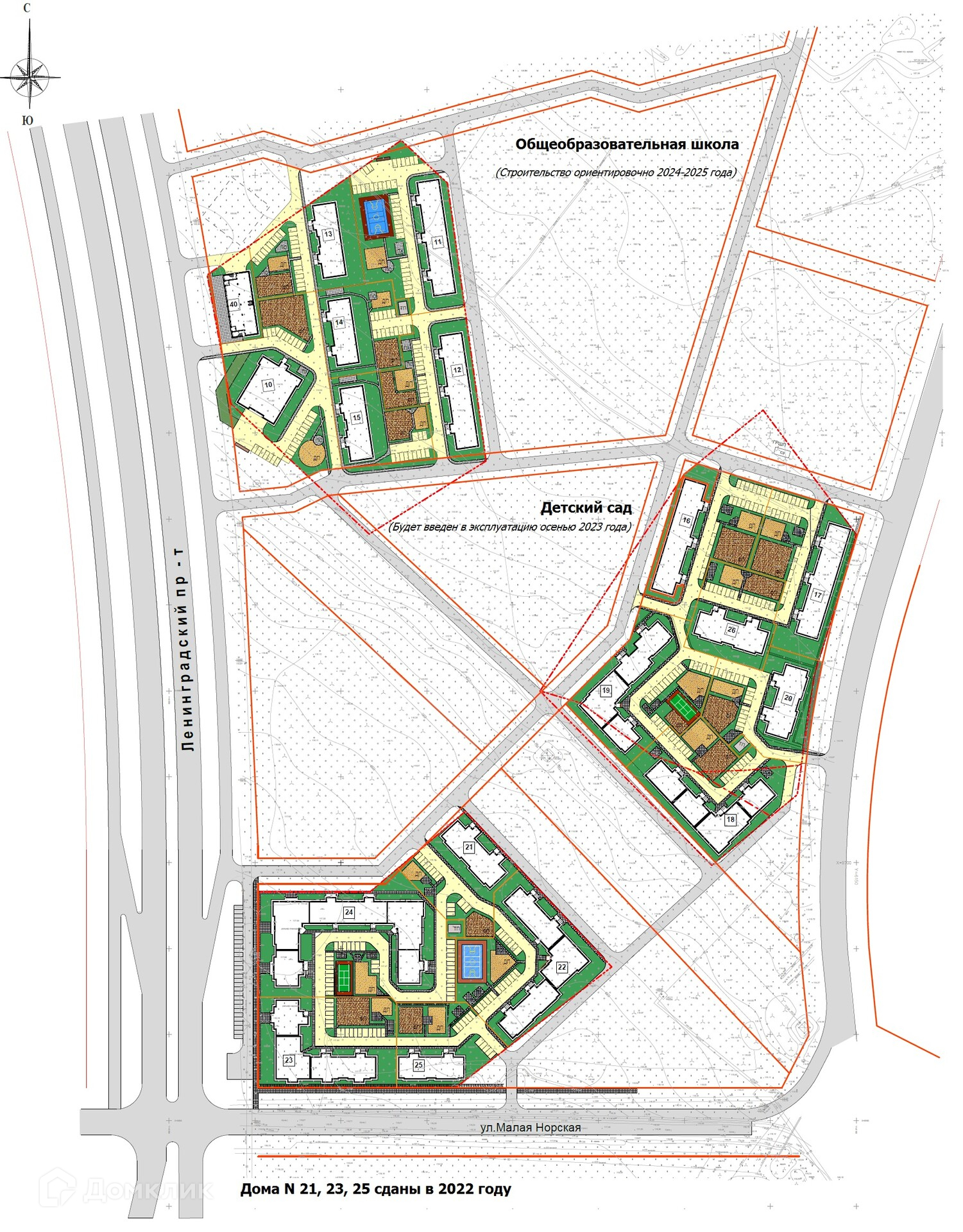
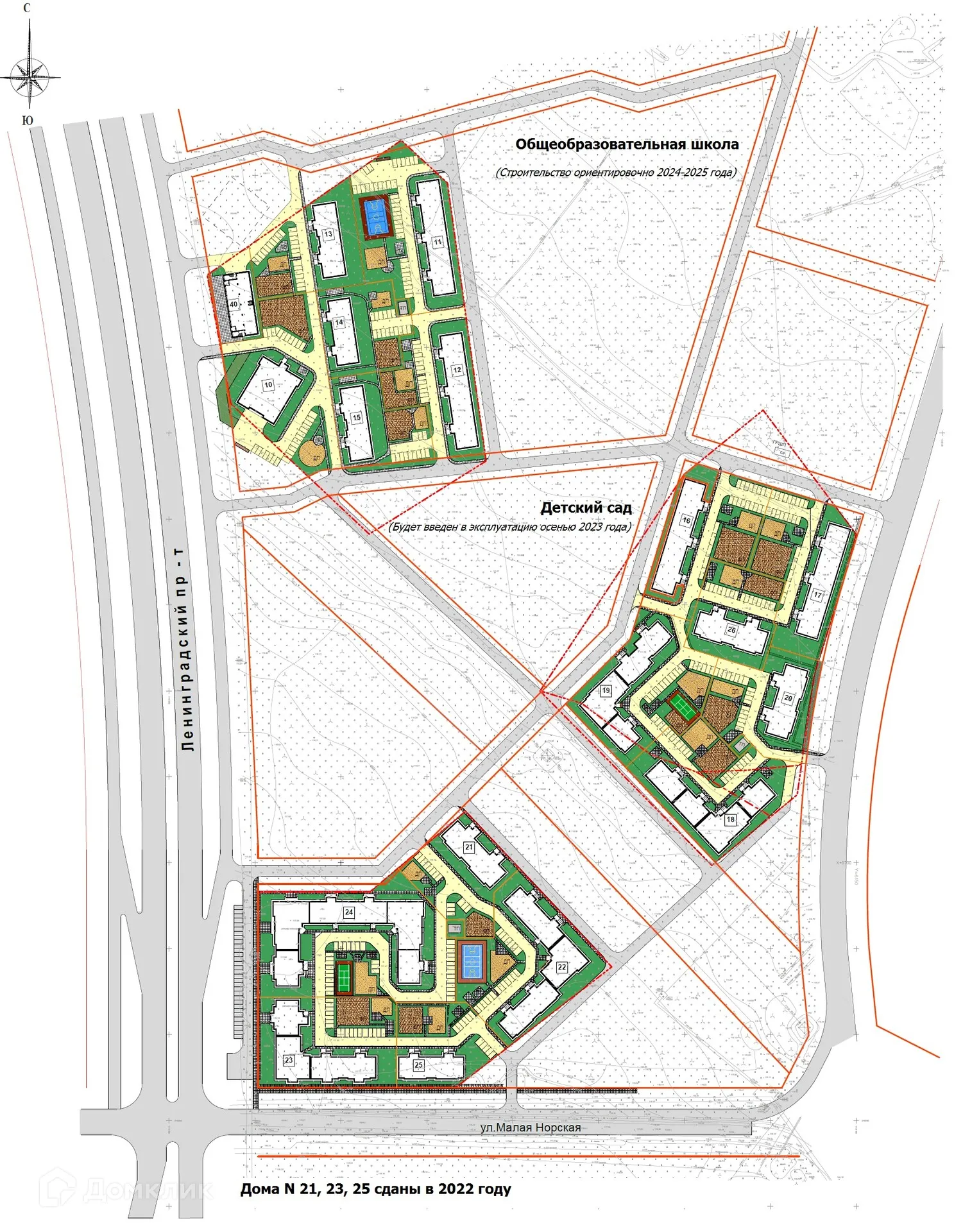
Расположение

Срок сдачи: 3 кв. 2022 г.

Ярославль, Дзержинский

Подробнее о ЖК

Срок сдачи: 3 кв. 2022 г.

34.04 - 77.53 м²

Площади квартир

Квартиры

Тип жилья

17

Этажность

Эконом

Класс жилья

7

Корпусов

кирпичный

Стены