Ярославль, Лисицына, 6в
Площадь
Жилая
Кухня
Отделка
Класс жилья
Комнат
Номер кв.
Этаж
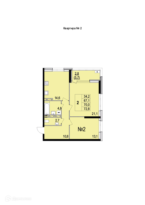
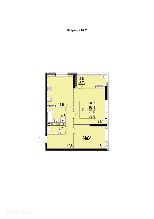
Продается 2-комнатная квартира в современном жилом комплексе "ЖК Жилой дом на Лисицына" 🏢. Квартира расположена на 2-м этаже 11-этажного дома. Прекрасный выбор для семьи.
Чтобы забронировать эту квартиру бесплатно и проверить актуальную стоимость — свяжитесь с нами прямо сейчас! 📞
Только до конца августа действует скидка на 2-комнатные квартиры площадью 67.9 кв.м – 1 350 000 рублей. Жилой дом на улице Лисицына будет расположен в Кировском районе города Ярославля. Выгодное расположение дома в центре города обеспечивает доступ ко всей инфраструктуре. О здании: Проект дома разработан архитектурным бюро Г. Дайнова. Это будет дом с переменной этажностью 9-10 этажей, который будет включать в себя: • подземный паркинг на 24 машино-места, • 1 технический этаж высотой 1,78 м, • нежилые помещения. Территория дома будет оборудована: • физкультурной площадкой, • детской площадкой, • зонами отдыха для взрослых и детей, оборудованными малыми архитектурными формами, • дизайнерским освещением. Фасад здания: Для облицовки фасадов по современной технологии "вентфасад" применяются фиброцементные панели с гладкой и фактурной поверхностями. Для теплозащиты здания использованы эффективные теплоизоляционные материалы. Высота потолков и отделка: Высота потолков со 2 по 9 этажи составляет 2,6 м. Высота 10-го жилого этажа - 3,2 м. В квартирах предусмотрены: • штукатурка стен, • панорамное остекление лоджий, открывающее потрясающие виды на город, • полотенцесушители, • приборы отопления, • индивидуальные счетчики тепла, водоснабжения и электроснабжения, • электрические розетки, • металлическая входная дверь. "Умный домофон". Современные технологии в вашем доме – это безопасность и удобство на новом уровне. Не упустите шанс комфортно жить в уютном и спокойном месте в центре города.
Срок сдачи: 4 кв. 2025 г.
Срок сдачи: 4 кв. 2025 г.
Площади квартир
Этажность
Класс жилья
Корпусов
Стены